东易愿景:成为最受尊敬的卓越的家装品牌服务商

24小时家装咨询:

0471-3281002

  • 家装咨询:0471-3281002
  • 投诉建议:13488579955
  • 媒体合作:13488579955
当前位置:首页 > 家装案例 > 精品案例

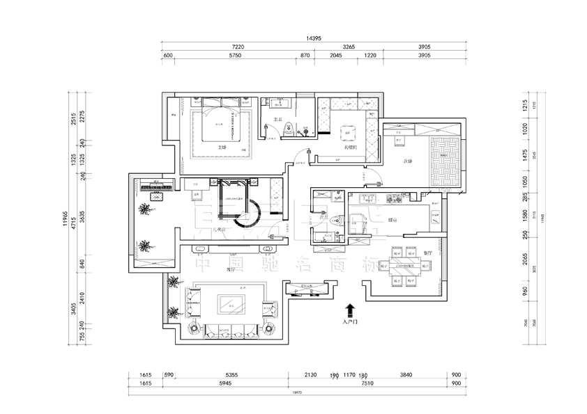
香格里-美式乡村-175平米

收藏次数:6742次 更新时间:2017-10-24 15:39:32
分享到:
案例风格 美式乡村 案例户型 普通住宅 案例面积 175
楼盘名称 所在城市 案例造价 --
服务店面 东易日盛·万德装饰 设计师 樊昌 施工队长

设计理念:

户型图
客厅
卧室
餐厅
其他

户型图

美式乡村-客厅

美式乡村-客厅

美式乡村-卧室

美式乡村-餐厅

美式乡村-女儿房

美式乡村-门厅

本案设计师简介

  • 姓名:樊昌

    级别:设计师

    部门:东易日盛·万德装饰

    电话:0471-3281002

    查看ta其它案例
免费

免费申请户型规划

专属设计师免费1对1全程服务

免费电话申请:0471-3281002

申请户型规划即送1000元家装抵用券

×

免费电话报价

0471-3281002

获取报价